Housing
On-Campus Housing
College Park Apartments located at 675 Johnson Street in Alpena has four-bedroom townhouse units for students of Alpena Community College. The townhouses are located on ACC’s Alpena Campus.
These apartments offer great accommodations in a safe,
supportive academic community, located steps
away from classes, the ACC Library, Student Services, and recreational facilities. New students will discover an encouraging transition to their college experience by making friends, having additional academic support, and taking part in innovative social activities.
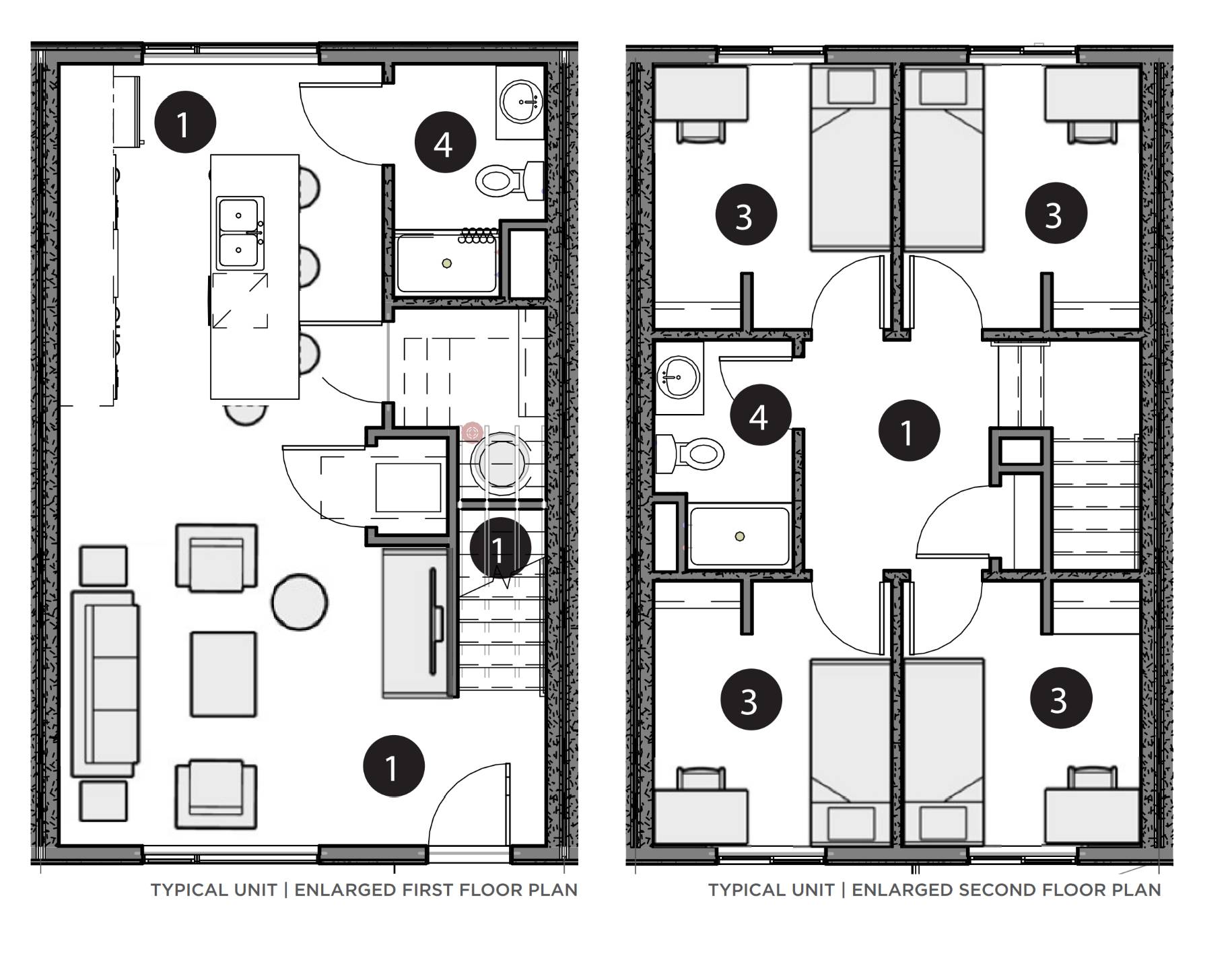
College Park Apartments have a traditional exterior to create a residential atmosphere. The development consists of sixteen four-bedroom townhouse units. Capacity is limited to 80 students, with each apartment having three single-occupancy rooms and one double-occupancy room.
New Campus Apartments | Fall 2026
With the completion of the new addition in August 2026, the development will consist of 24 four-bedroom townhouse units with two apartments featuring an additional handicap-accessible room. Capacity will be limited to 106 students, with eight apartments having three single-occupancy rooms and one double-occupancy room, 14 apartments with single-occupancy rooms only, and two apartments with four single bedrooms and a handicap-accessible unit on the first floor.
College Park Apartment features include:
- Four bedrooms, each with key lock entry, desk, chair, bed, mattress, dresser, and closet
- Three single bedrooms, one double occupancy bedroom with a bunk bed
- Kitchen equipped with stove, refrigerator, dishwasher, microwave, table, and four chairs, with an adjacent dining area
- A living room provides for relaxing with friends and comes equipped with one sofa and two chairs, a coffee table, an end table, and a lamp
- Two full baths
- Three storage closets
- Heat, electricity, water, trash disposal, wireless internet, and furniture are included in the rent
- The total cost for a single room is $6,000 per academic year
- The total cost for a single premium room is $6,900 per academic year
- The total cost for a double room is $4,600 per academic year
Additional features include outdoor basketball and volleyball areas, a central laundry room, and ample free parking by permit.
College Park Apartment leases will be for a nine-month term beginning August 19, 2026, through May 7, 2027. A reservation deposit of $600 is required to reserve a unit; this includes $500 that goes toward your rent and a non-refundable apartment application fee of $100.
ONLINE APPLICATION for Fall 2026, Spring 2027, and Summer 2027. Please note that you will need to log in to your myACC student account to complete the application. If you need assistance with your myACC student account, contact helpdesk@alpenacc.edu.
The Online Application for the 2026-2027 school year is now available.

Questions can be answered by contacting Cindy DeRocher, Director of Student Life Activities and Campus Housing at housing@alpenacc.edu or by calling 989.358.7394.




Off-Campus Housing
For those seeking off-campus housing, please reach out to the contacts listed below. We will continue to update this section with additional contacts as they become available.
Please note that Alpena CC does not manage or operate off-campus housing; lease agreements are arranged directly between you and the landlord.
Eric Chrzan - Phone: 215.316.8223
Lee Fitzpatrick - Email: lee@burnettpropertygroup.com
Michael Howard - Email: rebirtht3.5@gmail.com
Sarah Jane - Email: sarahjane@realestateone.net, cell: 989.255.5250
Amy Roznowski - Email: amyrozz@realestateone.net, cell: 989.350.2002
Lori Stephan - Email: lori@loristephan.com, cell: 989.657.2709, office: 989.354.7653
Dawn - Text: 989.657.3221 - 3-bedroom furnished house on US 23 South
Parker House - 541.777.7300 - Cabins
Ryan 989.916.9005 or Ashley 989.916.9006, 2-bedroom apartment on State Street
Contact the Director of Student Life & Campus Housing Cindy DeRocher
Director of Student Life & Campus Housing
College Park Apartments
housing@alpenacc.edu
989.358.7394
